Продажа 5-комнатной квартиры № 2, 219.4 кв.м, этаж 18/23 в Роскошный квартал «Лайф Тайм» (Life Time)

Москва, ЦАО, Пресненский, ул. Сергея Макеева, вл. 11/9
м
Улица 1905 года
5 мин.
Роскошный квартал «Лайф Тайм» (Life Time)
335 690 000 ₽
Оставить заявку
Главное
Ипотека
О жилом комплексе
Лента событий
Избранное
Скачать
ул. Сергея Макеева, вл. 11/9
Роскошный квартал «Лайф Тайм» (Life Time)
335 690 000 ₽
Главное
Ипотека
О жилом комплексе
Лента событий
Избранное
Скачать
Оставить заявку
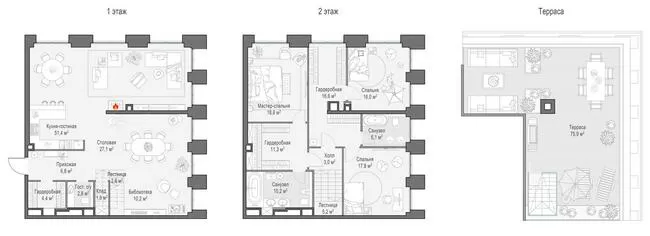
Планировка
Квартира
335 690 000 ₽
Комнаты
5
Площадь
219.4 м²
Этаж
18/23
Корпус
B
Номер секции
2
Номер на площадке
2
Тип отделки
Без отделки
Статус
Строится
Срок ввода
2026
Пешком до метро, мин.
5
Роскошный квартал «Лайф Тайм» (Life Time)
  • Роскошный квартал Life Time дарит время для жизни.
  • Статусное расположение на престижной Пресне позволяет быстро и с комфортом добраться до Сити или исторического центра Москвы — до Кремля всего 4 километра.
  • Пресня — зелёный район, здесь 25 гектаров благоустроенных парков для приятных прогулок.
  • Современный ландшафтный двор-парк площадью 1,7 гектара c арт-объектами.
  • Универсальная многофункциональная спортивная площадка для футбола, баскетбола, волейбола, детские площадки.
  • Clubhouse в отдельном здании с насыщенной средой только для жителей.
  • Четыре скай-виллы с просторными открытыми террасами и захватывающими прямыми видами на Москву-Сити и центр столицы. Пентхаусы с каминами и террасами.
Подробнее об объекте
Лента событий
Новости
Повышение цен 7 апреля в ЖК «Ново-Никольское»
Сообщаем, что 7 апреля произойдет плановое повышение цен на недвижимость в жилом комплексе «Ново-Никольское».
31 марта 2026
Стиль
Время расцветать: как ландшафтная архитектура влияет на продажи и настроение покупателя
Мы привыкли, что главным критерием выбора квартиры долгие годы была локация. Но сегодня, в эпоху реновации городских пространств и борьбы за комфорт, на первый план выходит то, что находится за порогом подъезда. Современный покупатель ищет не просто квадратные метры, а территорию жизни – среду, где он будет восстанавливать силы, растить детей и общаться с соседями.
30 марта 2026
Новости
Подготовку фундамента ДОО «Северная» завершили в ЖК «Детали»
В марте на строительной площадке жилого комплекса «Детали» завершили подготовку фундамента одного из двух детских садов: ДОО «Северная».
30 марта 2026
Новости
Скидки стали больше - до 15% в ЖК «Идеал»
Отличные новости для тех, кто планировал приобрести квартиру в ЖК «Идеал» по выгодной цене!
Стартовали скидки 15% на готовые квартиры с отделкой. Теперь купить однокомнатную квартиру 44 кв. м можно с выгодой до 1,7 млн рублей.
27 марта 2026
Город
От атриума римской виллы до небоскребов: эволюция террас в жилой архитектуре и лучшие предложения бизнес-класса Москвы
Идея собственного пространства на открытом воздухе, принадлежащего только вам, сопровождает человечество не одно тысячелетие. Сегодня квартира с террасой в многоэтажном доме перестала быть редкостью — она стала маркером качества жизни, символом новой городской роскоши. Откуда пришла эта мода, как её переосмысливают в разных странах, и какие проекты в Москве предлагают наиболее продуманные решения — читайте в нашем материале.
26 марта 2026
Похожие квартиры
м. Улица 1905 года
ул. Сергея Макеева, вл. 11/9
219.3 м² · 5 комнат · 19/23 этаж · Июнь 2026
339 060 000 ₽
339060000RUB
м. Улица 1905 года
ул. Сергея Макеева, вл. 11/9
209.3 м² · 5 комнат · 22/23 этаж · Июнь 2026
358 950 000 ₽
358950000RUB