Продажа 3-комнатной квартиры № 6, 68.2 кв.м, этаж 3/18 в Жилые кварталы «Белый Град»

Московская обл, г Мытищи, деревня Челобитьево, ул Колхозная
м
Медведково
10 мин.
м
Свиблово
14 мин.
м
Бабушкинская
16 мин.
м
Ботанический сад
17 мин.
Жилые кварталы «Белый Град»
15 370 000 ₽
Оставить заявку
Главное
Ипотека
О жилом комплексе
Лента событий
Избранное
Скачать
г Мытищи, деревня Челобитьево, ул Колхозная
Жилые кварталы «Белый Град»
15 370 000 ₽
Главное
Ипотека
О жилом комплексе
Лента событий
Избранное
Скачать
Оставить заявку
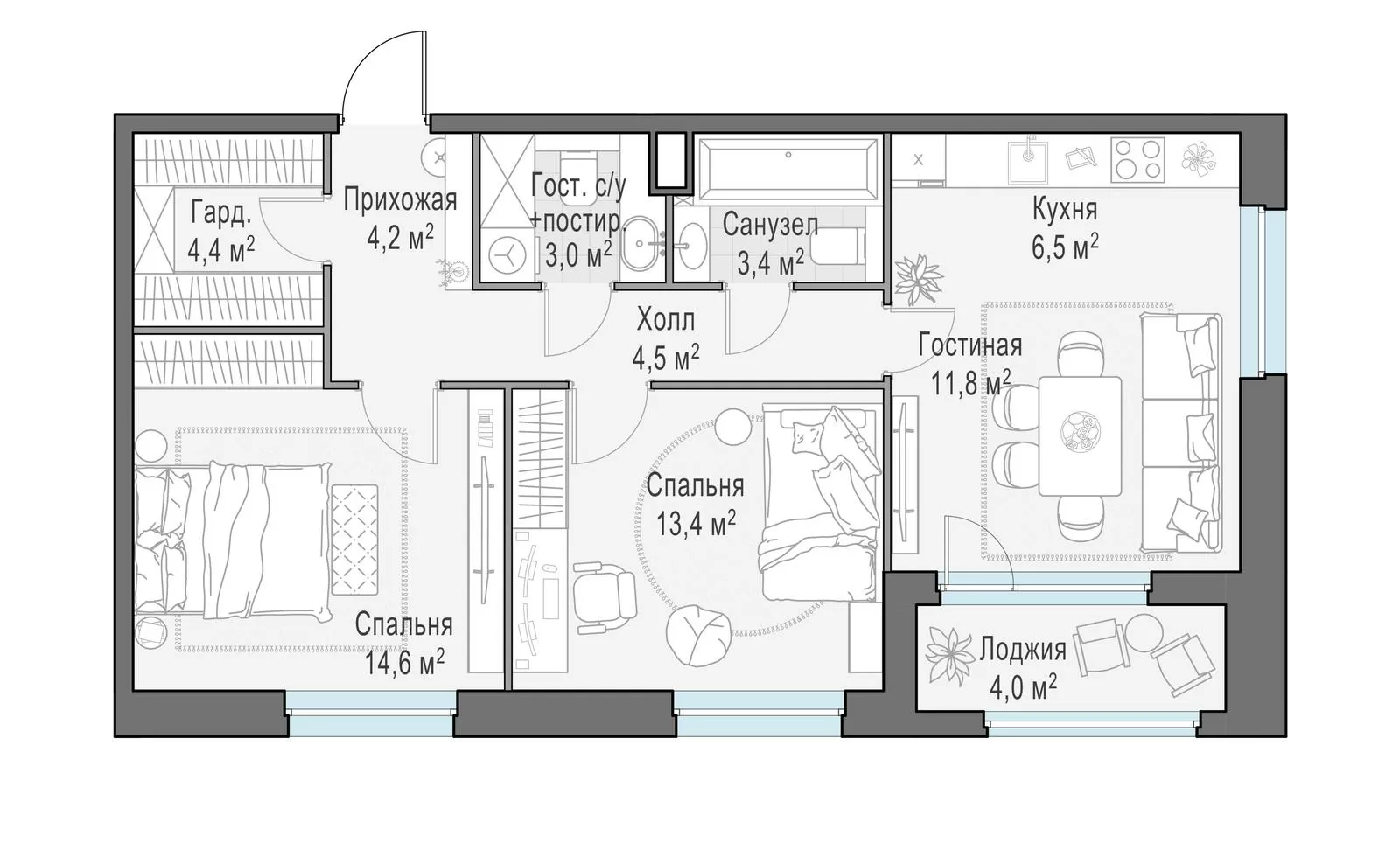
Планировка
Квартира
15 370 000 ₽
Комнаты
3
Площадь
68.2 м²
Этаж
3/18
Корпус
12.1
Номер секции
3
Номер на площадке
6
Тип отделки
Без отделки
Статус
Строится
Срок ввода
2026
Жилые кварталы «Белый Град»
  • На территории предусмотрены две современные школы и четыре детских сада, физкультурно-оздоровительный комплекс с бассейном и медицинский центр.
  • В ближайшем окружении: Хлебниковский, Мытищинский лесопарк, Клязьминское и Пироговское водохранилища.
  • В 350 метрах расположена «Дорога в Лавру».
  • 2 быстрых пути до МКАД — через Волковское (1,8 км) и Ярославское (6 км) шоссе.
  • Более 70 видов планировок — от студий до просторных трёхкомнатных квартир с мастер-спальнями и гостевыми санузлами.
Подробнее об объекте
Лента событий
Новости
Повышение цен 7 апреля в ЖК «Ново-Никольское»
Сообщаем, что 7 апреля произойдет плановое повышение цен на недвижимость в жилом комплексе «Ново-Никольское».
31 марта 2026
Стиль
Время расцветать: как ландшафтная архитектура влияет на продажи и настроение покупателя
Мы привыкли, что главным критерием выбора квартиры долгие годы была локация. Но сегодня, в эпоху реновации городских пространств и борьбы за комфорт, на первый план выходит то, что находится за порогом подъезда. Современный покупатель ищет не просто квадратные метры, а территорию жизни – среду, где он будет восстанавливать силы, растить детей и общаться с соседями.
30 марта 2026
Новости
Подготовку фундамента ДОО «Северная» завершили в ЖК «Детали»
В марте на строительной площадке жилого комплекса «Детали» завершили подготовку фундамента одного из двух детских садов: ДОО «Северная».
30 марта 2026
Новости
Скидки стали больше - до 15% в ЖК «Идеал»
Отличные новости для тех, кто планировал приобрести квартиру в ЖК «Идеал» по выгодной цене!
Стартовали скидки 15% на готовые квартиры с отделкой. Теперь купить однокомнатную квартиру 44 кв. м можно с выгодой до 1,7 млн рублей.
27 марта 2026
Похожие квартиры
м. Бабушкинская, м. Ботанический сад, м. Медведково, м. Свиблово
г Мытищи, деревня Челобитьево, ул Колхозная
58.9 м² · 3 комнаты · 5/18 этаж · Сентябрь 2026
13 930 000 ₽
13930000RUB
м. Бабушкинская, м. Ботанический сад, м. Медведково, м. Свиблово
г Мытищи, деревня Челобитьево, ул Колхозная
58.9 м² · 3 комнаты · 6/18 этаж · Сентябрь 2026
14 040 000 ₽
14040000RUB
м. Бабушкинская, м. Ботанический сад, м. Медведково, м. Свиблово
г Мытищи, деревня Челобитьево, ул Колхозная
58.9 м² · 3 комнаты · 7/18 этаж · Сентябрь 2026
14 210 000 ₽
14210000RUB
м. Бабушкинская, м. Ботанический сад, м. Медведково, м. Свиблово
г Мытищи, деревня Челобитьево, ул Колхозная
72.8 м² · 3 комнаты · 7/18 этаж · Сентябрь 2026
16 860 000 ₽
16860000RUB